Skip to content
ÉãÍ¼Íø_500303675_¸ë×ÓÓ봫ͳ(·ÇÆóÒµÉÌÓÃ)
shanghai-waitan
ÉãÍ¼Íø_501744584_º£ÄÏÕ°ÖÞÊк£»¨µº¾°Çøº½ÅÄ(·ÇÆóÒµÉÌÓÃ)
ÉãÍ¼Íø_500711333_æÄÔ´ÇïÉ«(·ÇÆóÒµÉÌÓÃ)
green mountain & water
Main Menu
HOME
EVENTS
Folklorama
Folklorama Chinese Pavilion 2026
2026 Folklorama Ambassador Recruitment|2026 Folklorama 大使招募
2026 Folklorama Calling for Volunteers | 2026 Folklorama 招聘志愿者
Folklorama Chinese Pavilion 2025
Celebrate the Success of 2025 Folklorama Chinese Pavilion | 庆祝2025年民风节中国馆圆满落幕
2025 Folklorama Chinese Pavilion Program List | 民风节中国馆节目单
2025 Folklorama Chinese Pavilion Menu | 民风节中国馆菜单
Folklorama Chinese Pavilion 2024
2024 Folklorama Chinese Pavilion Program 民风节中国馆节目单
2024 Folklorama Chinese Pavilion Menu | 民风节中国馆菜单
2024 Folklorama Festival Media Event at WCCCC Courtyard 民风节媒体发布会在温城中华文化中心花园举行
Folklorama Chinese Pavilion 2023
2023 Folklorama, Chinese Pavilion Photos
2023民风节中国馆闪亮回归
Calling for volunteers!
共享文化,展示才艺——为民风节招募表演者 Calling for Performers!
2023 Folklorama民风节中国馆大使招募
Folklorama Chinese Pavilion 2020
重要通知:2020 Folklorama民风节活动取消! 2020 Folklorama Festival Cancelled!
Folklorama Chinese Pavilion 2019
Folklorama Chinese Pavilion 2016-2018
Golden Dragon Gala
Golden Dragon GALA 2025
Golden Dragon GALA 2023
Golden Dragon GALA 2019
Golden Dragon GALA 2017
Chinatown Night Market
2025 Chinatown Night Market
2021 Chinatown Street Festival
2019 Chinatown Street Festival
2018 Chinatown Street Festival
2017 Chinatown Street Festival
Canada Day Celebration
Celebrate the Success of our 2025 Canada Day | 2025加拿大国庆节圆满落幕
2025 Canada Day Celebration | 2025 加拿大国庆日
2023 Canada Day Celebration 国庆节庆祝活动
庆祝加拿大国庆节击鼓庆祝活动圆满落幕 celebrate the success of 【Coast to Coast Drumming】 Canada Day Drumming Celebration
【Coast to Coast Drumming】加拿大国庆节击鼓庆典活动 Canada Day Drumming Celebration
【“2020·创意Canada Day”——征美图&短视频活动】分享属于您的加拿大日的庆祝活动![“2020·Innovative Canada Day”—Call for Photos & Short Videos Event] Share Your Own Canada Day Celebration
市长都来了,你还不来吗?加拿大国庆日欢庆演出等你一起来参加!Celebrate Canada Day with the Mayor!
国庆节!长周末!多样精彩活动high到爆!Canada Day! Variety of exciting activities!
加拿大日 Canada Day
Chinese New Year
Chinese New Year Celebration
2022 Chinese New Year Online Celebration
2021 Chinese New Year Online Celebration
2019 Chinese New Year Celebration
2018 Chinese New Year Celebration
2017 Chinese New Year Celebration
Chinese New Year Banquet
2026 Chinese New Year Banquet
2024 Chinese New Year Banquet
2021 Chinese New Year Banquet
2020 Chinese New Year Banquet
2019 Chinese New Year Banquet
2018 Chinese New Year Banquet
2017 Chinese New Year Banquet
Chinese New Year Table Tennis Tournament
2026 Chinese New Year Table Tennis Tournament
Tax Return
2026 Free Tax Clinic
2025 Free Tax Clinic
2024 Free Tax Clinic
2022 Free Tax Clinic
2021 Free Tax Clinic
2019 Free Tax Clinic
2018 Free Tax Clinic
2017 Free Tax Clinic
Passport Renewal
2026 Passport Renewal
2023 Passport Renewal
2019 Passport Renewal
2017 Passport Renewal
国籍状况声明书 – 中国护照换发文件
Passport Renewal护照办理材料清单 | 温城中华文化中心
Calligraphy Competition
重要通知:温城中华文化中心2020曼省“中华杯”书法大赛推迟举办
2019 Calligraphy Competition
Zhonghua Cup Basketball Tournament
Table Tennis Tournament
2026 CNY Table Tennis Tournament
2026 May Table Tennis Tournament
PROGRAMS
Programs Schedule
Seniors Program
ROOM RENTAL
Room Information
Room Booking
Gym Booking
Meeting Room Booking
Dance Room Booking
Calendar
COMMUNITY
Youth Committee
HOUSING
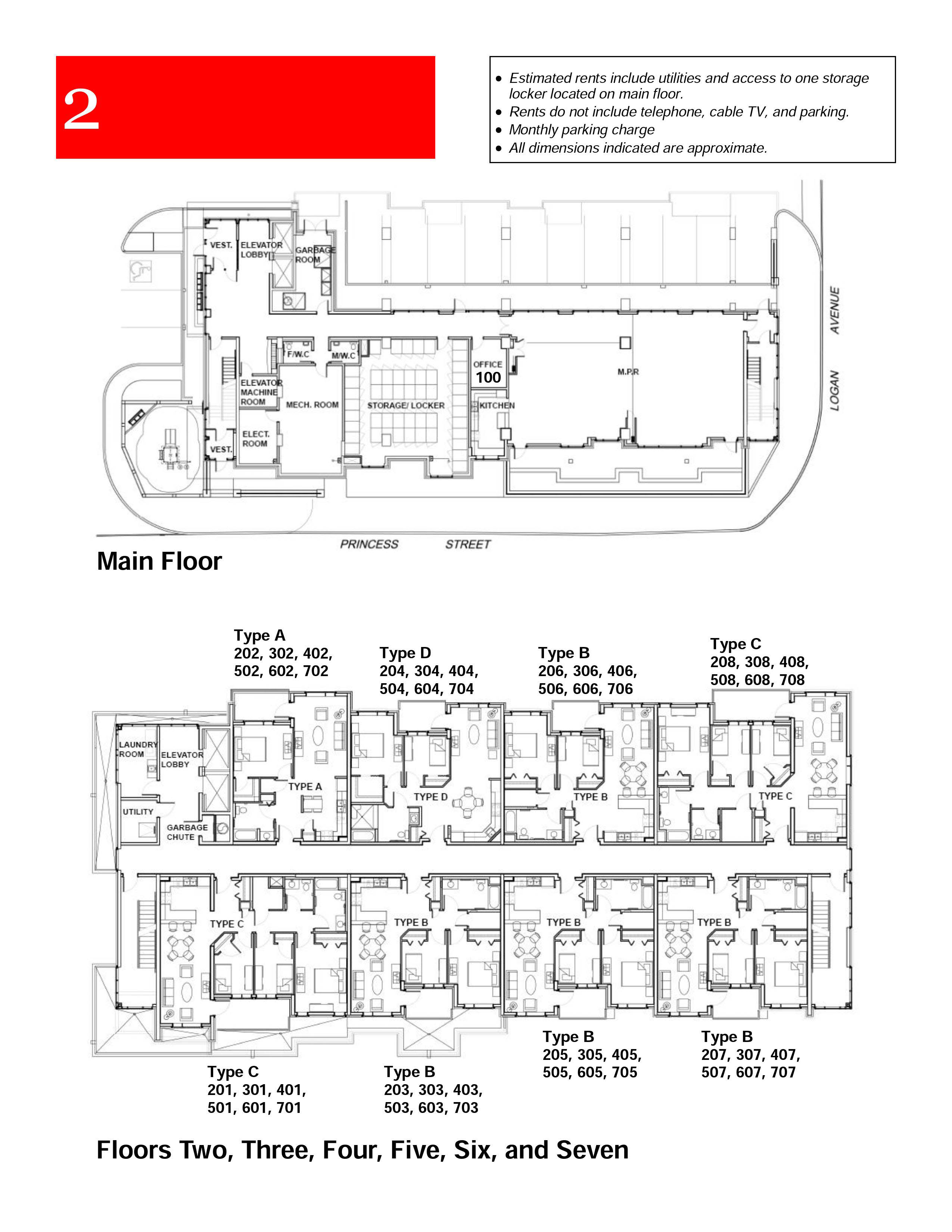
Peace Tower
Shanghai Tower
ALBUM
ABOUT US
MEMBERSHIP
CONTACT
BOARD OF DIRECTORS 2025
PRESIDENT’S REPORT
2025 President Report
DECEMBER 2025
NOVEMBER 2025
OCTOBER 2025
SEPTEMBER 2025
AUGUST 2025
JULY 2025
JUNE 2025
MAY 2025
2026 President Report
JANUARY 2026
FEBRUARY2026
ANNUAL REPORT
OUR STORY
0002 fixed
Leave a Reply
Cancel reply
You must be
logged in
to post a comment.